Can You Still Read the Lines? — The Blueprint Eye Test for Real Builders

Can You Still Read the Lines? — The Blueprint Eye Test for Real Builders

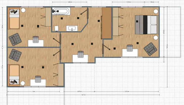
What does a ‘floor plan’ show?

4%
Next
Correct Incorrect A floor plan shows the top-down layout of rooms, walls, and openings on one level.

What does a ‘floor plan’ show?

  • The side view of a building
  • The layout of rooms from above
  • The foundation details
  • The roof structure
4%